發布時間:2024-04-03
來源:上海弘泱機械科技有限公司
1 引言
一體化預制泵站在歐洲已有近70年的使用歷史,已成為歐洲市政給水、排水泵站的主要形式,在歐洲一體化預制泵站使用率高達 70%以上四。其具有自身系統集成度高,占地面積小;施工量小,安裝工期短;可實現泵站遠程控制、無人值守以及美化環境等一系列優點
21世紀初,我國開始引進一體化預制泵站,并在國內給排水系統中應用實例越來越多。例如,北京天安門污水泵站、上海浦東新農村污水泵站、吉林延吉濱河路下穿立交雨水泵站山東廣饒縣濰高路雨水泵站、天津濱海新區南部雨水泵站和山東菏澤經濟開發區雨水泵站等
一體化預制泵站的基本形式可分為干式一體化預制泵站和濕式一體化預制泵站,可用來提升雨水、污水、廢水、生活飲用水。一體化預制泵站在工廠組裝和預制,是近年來比較實用、流行的給排水加壓設備。其筒體材質一般為玻璃鋼,可完美代替傳統鋼筋混凝土水池,并因此減少了人力、物力、財力的投入。
2 一體化預制泵站簡介
2.1 一體化預制泵站
一體化預制泵站是由進水格柵、水泵、壓力管道、閥門、出水管路、頂蓋、筒體、底座、服務臺、控制裝置等組成的一體化設備。其泵站主體采用玻璃纖維增加復合材料(玻璃鋼/GRP)纏繞加工成型,強度高、無變形、持久耐用,使用壽命長達 50年以上。其可結合廠家的遠程監控智能云平臺實現泵站內的數據采集、在線監測等功能。
2.2 一體化預制泵站優勢
與傳統泵站相比,一體化預制泵站具有7大方面的優勢1)占地面積:一體化預制泵站系統集成度高,占地不大減少了地面配套設施,對周邊環境影響少;傳統泵站需供應商和土建方互相配合,系統集成度低,占地大,而且不利于周邊環境保護
2)施工周期:一體化預制泵站的運輸和吊裝作業方便,做好基坑開挖、泵站底板預制工作即可,1周內便能安裝好。傳統泵站屬于鋼筋混凝土結構,泵站底板、池壁、頂板無法同時作業,澆筑和養護所需時間為2~3個月,現場施工的精度和質量比產品工廠化生產差。
3)控制系統:一體化預制泵站為智能化系站,配置了專用的監控系統,能夠遠程控制泵站,并達到無人值守的效果:傳統泵站需要建設專門的控制空,安排專人來管理,建設及管理成本較高。
4)組件配合度:一體化預制泵站可根據客戶提供的要求和數據,在工廠組裝和預制,責任方為工廠。所有配件(包括泵、壓力管、維修通道、維修梯、網格設備、耦合系統、通風設備、防滑井蓋等設施)在出廠前經過測試以確保配件的質量各部件之間具有良好的匹配性,泵站系統在正常工況下的工作效率很高;傳統系站由不同品牌的不同部件組裝而成,匹配性較差,無法達到泵站最優的水力條件。
5)防滲漏:-體化預制泵站的簡體材料由玻璃鋼(GRP)制成,具有出色且穩定的質量,出廠前經過了防滲漏壓力試驗,具有良好的防滲漏效果;因傳統泵站為鋼筋混凝土結構所以在地層缺乏穩定性的情況可能發生裂縫,防滲漏性能較差。
6)噪聲:一體化預制泵站采用先進的泵站設計理念和高品質的水泵,泵站在運行時的噪聲非常低,在人口多的住宅區和商業建筑等對環境要求較高的場合中均可使用:傳統泵站各個部件之間匹配性較差,水泵開啟、停止和運行時均會有較大的噪聲,從而對周圍環境產生不良影響。
7)室外安裝要求:一體化預制系站在室外、綠化帶、道路等場所中均可安裝使用,在施工作業面小、人口密度大、建筑集中的地方也有著較大的優勢;傳統泵站要求有開闊的施工空間,如果在道路和居民住宅區施工,必須考慮到交通、拆遷等問題
2.3 一體化泵站設計揚程
設計揚程應根據設計流量時的集水池水位與受納水體平均水位差和水泵管路系統的水頭損失確定
最高揚程應按系站出水最高運行水位與進水池最低運行水位之差和水泵管路系統的水頭損失確定,
最低揚程應按泵站出水最低運行水位與進水最高運行水位之差和水泵管路系統的水頭損失確定
3 一體化預制泵站案例
3.1工程概況
東站北路是南昌市高鐵東站的配套道路,道路紅線寬為36m,采用雙向6車道,設計速度為40 kmh,規劃為城市次干道。東站北路下穿天祥大道處設計了下穿隧道,由于隧道兩端敞口U 形槽段的雨水徑流無法重力流排出,本次設計雨水泵站負責將已收集的雨水徑流提升至天樣大道現狀雨水系統
因東站北路周邊用地較為緊張,且考慮到雨水泵站方便飾工,并減少泵站后期運維人力資源投入,故本次雨水系站選用一體化預制泵站。
3.2 設計雨水泵站標準
根據 GB 50014-2021《室外排水設計標準》,特大城市中心城區地下通道雨水管渠設計重現期為30-50年一遇。為保證東站北路下穿隧道運行安全,確定東站北路雨水泵站設計標準取上限,即雨水管渠設計重現期 50 年一遇
3.3 設計雨水泵站匯水面積
設計雨水泵站應貫徹“采用高水高排、低水低排且互不連通的系統,并應果取措施,封閉匯水范圍,避免客水匯入”的設計原則。在本工程設計中,為了避免“高水”流域面積內雨水越過原本設計的范國進入“低水"流城面積,在敵口U形槽網翼設置擋墻,以有效地防止高水進入低水系統,并在U形槽端口處設置道路線型橫截溝,封閉匯水范圍,避免客水匯入,最終確定本次設計離水泵站的匯水面積為0.91hn
3.4 設計雨水泵站流量計算
本工程采用推理公式法時,計算雨水泵站設計流量,計算公式為:
0-g4F01)式中,Q為雨水設計流量,Ls;9 為設計暴雨強度,L(s-hm?);o為綜合徑流系數:F為匯水面積,hmr
本工程位于南昌市高鐵東站片區,南昌市暴商強度公式為:1 598(1+0.69logP)町三-(e+14yas
2)
式中,”為設計暴雨強度,L/(s·hmr);戶為設計重現期,年;為設計降雨歷時,min,其中、降離歷時-+6,5為地面集水時間,min;;為管渠內雨水流行時間,min
設計雨水泵站為排除隧道兩遙敞口U形槽段的雨水徑流,故中取 0.9:;山取3min;P取 50 年;匯水面積為 0.9l hm?計算流量 Q=1.1 m飛s。
3.5 雨水泵站設計
3.5.1 雨水泵站選型
因東站北路與天祥大道交叉口處周邊用地較為緊張,且考慮到雨水泵站方便施工,并減少泵站后期運維人力資源投入,故本次雨水泵站選用一體化預制泵站。一體化預制泵站設置于東站北路與天祥大道交叉口西南角綠地內《規劃用地性質為城市綠地)
3.5.2 雨水泵站設計
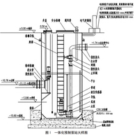
敞口U 形槽段雨水徑流經雨水收集系統匯集至一體化預制泵站前端配水并,再經由系站提升后排至設計消能并,最后排至現狀市政雨水系統,如圖1所示
雨水泵站集水池客積不應小于最大一臺系 60s的出水量。因本工程設計一體化預制泵站設置于綠化帶內,故泵站的并蓋應高出周邊地面45 cm 以上,并應進行防水設計。雨水泵站供電應按二級負荷設計,
裉據設計敵口U形槽段雨水管網及現狀物探管網資料,本工程設計雨水一體化預制系站工藝數據如下(地面高程為+0.00 m,其余高程均為相對高程):(1)DN1400 mm 雨水泵站進水管,管內底高程:-11.12m;(2)水泵啟泵水位高程-10.76m;(3)水泵停泵水位高程:-13.86 m;(4)DN1 000 mmm雨水泵站出水管,管中心高程:-1.74m;(5)DN1 S00 mnm 現狀雨水管,管頂高程:-2.32m;(6)一體化預制泵站并蓋頂高程0_50 m;(7)一體化預制泵站井蓋頂高程:-15.6m;(8)一體化預制泵站內設置三臺三用潛污系,每臺泵流量均為1487mn小h雨水泵站進水經粉碎格柵并粉碎污物,然后均勻配水給3 臺潛污泵,通過3合潛污泵提升后通過1根DN1000 mnm 智道排至設計消能井。DN1000mm出水管道上設置蝶閥,以作檢修用;出水口處安裝鴨嘴閥,防止雨水倒灌
本工程設計一體化預制系站埋深較大,為避免深基坑支護,本工程在一體化預制泵站外設鋼筋混凝土井,設計鋼筋混凝土井采用沉并法施工.

4 結語
1)隨著我國城市開發建設,地下隧道、通道等交通設施的建設會越來越多,考慮到城市用地系張,傳統雨水泵站建設占地面積大,一體化預制泵站可以作為一種有效的解決方案2)一體化預制泵站系統集成度高、占地面積小、工工期短、可實現系站遠程控制、美化環境,管理便捷,和傳統泵站相比,具有明顯優勢。本工程使用一體化預制泵站提升隧道網端敞口U形槽段的雨水徑流,減小了泵站設計對周邊環境的影響,提高了泵站管理、運維效率,
3)本工程使用沉并旗工一體化預制泵站外設鋼筋混凝士并,避免了深基坑支護,且鋼筋混凝土并可有效減輕一體化預制泵站土側壓。
本文標題:一體化預制泵站在隧道工程中的應用
責任編輯:弘泱機械科技編輯部
本文鏈接:http://m.shfukuan.cn/xwzx/gsdt/3076.html 轉載請注明出處