發布時間:2024-03-31
來源:上海弘泱機械科技有限公司
污水提升泵站是污水管網系統中的重要節點設施。因污水管道采用重力流,在設計時有一定的坡度隨污水管網的距離長度增加,管網埋深變大,一般在埋深大于 10m或者污水管需要穿越河涌、堤防、地鐵等重力流無法穿越的情況時,需增設污水提升泵站傳統污水提升泵站一般采用松散庭院半地下式,占地面積較大四,造價高;成品一體化污水提升泵站常采用玻璃鋼外殼,其耐久性、規范相符性相對較差。此外污水提升泵站一般深度較深,基坑開挖難度大、施工風險大。綜上因素,提出一種沉井式一體化污水提升泵站,本文結合工程實例,對沉井式一體化污水提升泵站設計要點進行研究探討,以期為類似工程項目的開展提供參考。
工程概況
潮州某污水處理廠工程新建1座粗格柵及進水泵站(以下簡稱“CZ泵站”),泵站規模按0.058m%s(0.50萬myd)一次建設,設備按近期 0.029 m/s配置。廣州南沙某市政污水管節點新建中途污水提升泵站(以下簡稱“NS泵站”),泵站規模按 0.233 m/s(1.28萬 md)一次建設,設備按 0.233 ms 配置。根據 GBT 50265-97《泵站設計規范》,CZ 泵站和 NS 泵站均屬于小型泵站地理條件2
CZ 泵站位于河涌邊,原屬于潮州某污水處理廠的污水泵站,因污水處理廠周邊存在外江堤防、橋梁等因素,無法采用傳統重力流進污水廠,因此采用污水泵站提升后用壓力管過外江堤防和橋梁橋墩群。CZ 泵站進水管管徑 D600,管底標高 6.63 m,地面標高 11.24 m,埋深約 4.61 m。
NS 泵站位于河涌邊,原河涌岸邊的市政污水管管徑 D600,管底標高-1.8m,地面標高 6.70 m,埋深約8.5 m,因污水管建成年代久遠,存在較多的結構性隱患,河涌水涌人污水管網,修復難度較大、施工倒流難度大,通過增設污水提升泵站的形式增加備用管形式替代原有重力流污水管的污水轉輸功能。
泵站設計
3.1 技術要求
3.1.1 具備攔渣功能
污水中含有大量的固體殘渣,為保護水泵,避免垃圾堵塞水泵葉輪導致過載損壞,污水提升泵站應設置格柵機。
3.1.2 符合設計規范要求
污水提升泵站是污水系統的重點節點設施,對于污水系統正常運營具有重要意義,在設計時應確保泵間距、泵與側壁的凈距、水泵運行時間等應滿足規范要求,3.1.3 使用壽命較好
污水泵站屬于城建基礎設施,應具有良好的使用
壽命。
3.1.4 用地集約,無突出地表明顯構筑物污水提升泵站一般在城鎮建成區,土地資源珍貴應集約用地,并減少對城市景觀的影響。
3.2方案比選
污水泵站主要形式為傳統污水提升泵站、成品一體化污水提升泵站、沉井式一體化污水提升泵站等,具體對比情況見表1。3種方案中傳統污水提升泵站占地面積最大,投資最高,施工周期長,且不利于城市景觀,暫不予考慮。根據勘察資料及現場情況,擬設泵站位置場地相對狹小、靠近河涌,采用開挖施工方式會帶來諸多不可預見的情況。考點到泵站規模、場地條件等因素,初步采用沉井式一體化污水泵站。對方案的應用考慮如下。

3.2.1 占地面積
沉井式一體化污水泵站的占地面積相比傳統污水提升泵站占地面積更小,集約用地,投資相應更小,對城市景觀的影響也比較小。
3.2.2 耐久性和使用壽命
成品一體化污水提升泵站一般采用玻璃鋼筒體內部的粉碎格柵、水泵等附屬設施依附在玻璃鋼筒體上,在受到震動或運輸不當磕碰時,易出現破損,給后續運營帶來隱患,同時由于制作工藝限制,筒體直徑不能做得太大,集水池較小、水泵頻繁啟動,耐久性和使用壽命存在一定的缺陷
總體來看,沉井式一體化污水提升泵站既具備傳統污水提升泵站的使用壽命較長、可靠的特點,又兼具成品一體化污水提升泵站的高度集成性,具有比較泛的應用場景
3.3 方案設計
3.3.1 工程規模
CZ 泵站設計規模0.50萬md,旱季最大規模0.95 萬 m/d,共設置了3個泵位,安裝2臺。根據污水量及揚程的特點,水泵采用蝸殼式潛水排污泵。單臺流量為 0=198 mh,揚程 H=20 m,功率 N=22 kW,近期早季1用1備,雨季2用,遠期加裝1臺泵,2用1備,均變頻。安裝回轉式粗格柵1臺,柵寬 B=700 mm,柵隙6=20 mm,安裝角度 a=75°,功率 N=0.37 kW
NS 泵站設計規模 1.28萬md,旱季最大規模2.06萬md,共設置了3個泵位,安裝3臺。根據污水量及揚程的特點,水泵采用蝸殼式潛水排污泵。單臺流量為0=430 m/h,揚程H=14m,功率N=30 kW,近期早季1用1備,雨季2用1備,遠期時2用1備,均變頻。安裝粉碎格柵1臺,流量0=860mmh,功率N=5.5 kW。3.3.2 工程布置
CZ 泵站采用矩形布置,占地面積約 76 m’。泵站整體采用鋼筋混凝土箱體結構,LxBxH=7.4mx7.6 mx8.6 m,泵站采用半地埋形式,設置4類檢修孔,分別為水泵檢修孔 LxB=1.0 mx1.0 m、前閘門檢修口 LxB=1.0 mx0.8m、后閘門檢修口 700 和格柵檢修孔 LxB=2.35 mx0.8m,平面和剖面布置示意圖如圖1所示。
NS 泵站采用矩形布置,占地面積約 49 m。泵站整體采用鋼筋混凝土箱體結構,LxBxH=6.0 mx7.0 mx7.5 m,泵站采用全地埋形式,設置3類檢修孔,分別為水泵檢修孔 LxB=1.8 mx0.8m、清淤孔 Ф700、格柵檢修口 LxB=1.2 mx1.2m,平面和剖面布置示意圖如圖 2所示。為避免同一區域開挖大基坑,泵前檢修閘門設置閘站上游 20m污水檢查井內,采用圓形閘門,無漏出地埋的操作桿。
![]() |
![]() |
![]() |
![]() |
3.3.3 水泵啟停方式
CZ 泵站共安裝3臺水泵,采用“分水位開啟、分水位停”方式,即第一臺水泵啟泵水位即是第二臺水泵的停泵水位,每臺水泵按 5min 設置啟停,停泵液位 5.50m、單泵啟泵液位 6.05 m(也即第二臺停泵液位)、雙泵啟泉液位 6.50 m。
NS 泵站共安裝2臺水泵,采用“分水位開啟、同水位停”方式,即第一臺水泵啟動后,如水位仍繼續上升,則設定水位接近充滿度時開啟第二臺水泵,第二臺水泵與第一臺水泵停泵水位相同。NS泵站停泵液位0.70m,第一臺水泵啟泵水位 1.90 m,第二臺水泵啟泵水位 2.36 m,2 臺水泵共用停泵液位。
3.3.4 沉井結構設計
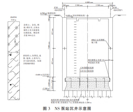
CZ 泵站和 NS 泵站沉井有一定的相似性。以 NS泵站為例,沉井尺寸 LxBxH=6.0 mx7.0 mx7.5 m,采用直壁式側壁,側厚度 500 mm,底板厚 500 mm。采用“不排水下沉”法,水下素砼封底厚1100 mm,主體結構采用 C30 混凝土,封底采用 C25 混凝土。地質揭露存在淤泥質土,地基處理進行 Ф500@1 000 高壓旋噴樁處理。NS 泵站下沉開挖土層主要為填土、淤泥質土,無鄰近需保護建構筑物,不未設擋土周樁。NS 泵站底板與側壁之間的止水措施采用2道遇水膨脹止水條,效果較好。做法如圖3所示。

3.4 設計要點
3.4.1 泵站的集約化布置經對比研究,沉井式一體化污水提升泵站主要有以下3種布置形式(圖4),其中布置形式一采用回轉式機械格柵,將格柵及格柵檢修、泵站檢修閥門設置在沉井內部,通過內部隔墻分為不同的功能區,不同功能區的高程差異通過素混凝土二次填充實現;布置形式二和布置形式三均采用粉碎格柵,將格柵安裝在沉井內壁,將泵站檢修閥門井設置在沉井外的第一個污水檢查井內,相比布置形式一,布置形式二和布置形式三用地更加集約。3種布置形式的共性是閥門井二次施工澆筑。本研究案例中的CZ泵站屬于布置形式一、NS泵站屬于布置形式二,從實際設計來看,雖然 NS 泵站規模遠大于 CZ 泵站,但得益于粉碎格柵的使用,NS 泵站占地面積比 CZ 泵站更小,。
3.4.2 泵站揚程設計
水泵揚程確定是水泵選型的重要考慮因素,水泵的揚程主要由靜揚程、沿程損失和局部損失構成,此外,為保障水泵運營安全,一般預留一定的富余水頭。在計算水泵揚程時,應分別按近期、遠期的旱季平均和旱季高峰等工況進行計算,按最大值選取水泵。當計算的水泵揚程過高時,應通過調整出水管管徑的方式降低流速,從而降低揚程。在計算沿程損失時,應采用海曾威廉公式計算。以 NS泵站為例,不同工況下,揚程計算結果詳見表2,計算泵站揚程在6.18-12.07m,考慮最不利工況揚程為 12.07m,預留2m左右富余水頭,最終選取水泵揚程 日=14m。在選用水泵時,優先選擇帶切削功能的變頻泵。當泵站服務分區內存在合流區時,還應考慮雨季運行工況下揚程的復核。
3.4.3 集水池有效容積及水泵啟停
泵站集水池有效容積是水泵可靠、穩定運行的必要條件。集水池的容積不應小于最大一臺水泵5min的出水量,水泵機組為自動控制時,每小時開動水泵不宜超過6次口,在集水池有效容積設計時,應充分考點水泵總體參數選型,泵站規模較小時建議采用同等規模的變頻泵。以最大一臺水泵的5min出水量作為集水池最小有效容積,結合泵站平面尺寸設計,確定第一臺水泵的啟泵水位和停泵水位。由于泵站最高水位在進水管道充滿度位置,停泵水位在進水管底高程以下,因此,不同啟停模式對泵站基坑深度有明顯影響,“分水位開啟、分水位停”啟停方式會導致泵坑深度相對比“分水位開啟、同水位停”方式更深,在設計中應根據實際情況選擇。除此之外,還有“階梯式開泵、階梯式停泵”方式,即第一臺水泵和第二臺水泵的啟泵水位、停泵水位均不同,分階段啟動、分階段停泵,2個水泵啟泵水位和停泵水位差值相等。研究表明,“階梯式開泵、階梯式停泵”方式相比“分水位開啟、分水位停”“分水位開啟、同水位停”方式水泵啟停最不頻繁、最為安全考慮到“階梯式開泵、階梯式停泵”在運維階段可在其他2種方式上修訂水泵啟停水位實現,建議在設計時優先考慮其他2種方式。

3.4.4 沉井設計與施工
對比傳統基坑支護方式,沉井平面尺寸小,適合場地空間狹小、開挖深度大的工況,自身結構可作為基坑支護結構;在地下水豐富地區,沉井法可水下開挖、不排水下沉,節約降排水措施費。沉井法與污水泵站良好四配的沉井式一體化污水提升泵站具有明顯優勢,在設計時應特別注意:①優先考慮地質資料、周邊環境情況,評估是否能夠使用沉井、是否需要設置擋土周樁及地基處理,周邊有臨近建構筑物時應設置擋土周樁,減少沉井下沉過程中因超挖、傾斜或存在流沙等造成的周邊地面沉降;②在滿足泵站功能需求的基礎上,合理確定沉井尺寸;③應特別注意底板與側壁之間的止水措施,防止地下水的滲人;④重視施工階段結構內力配筋、封底厚度、下沉、使用階段結構內力配筋、地基承載力、抗浮穩定和裂縫等各個層面的結構計算。相較傳統方式由下到上澆筑結構不同,沉井法下沉標高較難精準控制,易產生傾斜,施工時應控制下沉速度,防止突沉,將偏差控制在允許值之內,保證泵站標高滿足工藝要求。
泵站的運行情況
CZ 泵站于 2020 年 10月建成通水,至今通水 2年多時間,已基本按近期規模運行,運行過程一切正常運行穩定、可靠。NS 泵站于 2022 年1月建成通水,至今通水1年多時間,運行過程一切正常,已基本按設計規模運行,運行穩定、可靠。
結束語
污水泵站的設計需綜合考慮功能、用地情況、投資大小和施工影響等各方面的要求及條件,經對比論證研究確定沉井式一體化污水提升泵站的技術方案。本文結合2種不同的泵站布置形式的工程實例,探討分析設計要點。隨著對沉井式一體化污水提升泵站的研究,其具備的集約用地、易于施工、投資小及規范相符性較好等綜合優勢,將使其在污水治理工程中發揮更加重要的作用。
本文標題:沉井式一體化污水提升泵站設計要點探討
責任編輯:弘泱機械科技編輯部
本文鏈接:http://m.shfukuan.cn/xwzx/gsdt/3061.html 轉載請注明出處